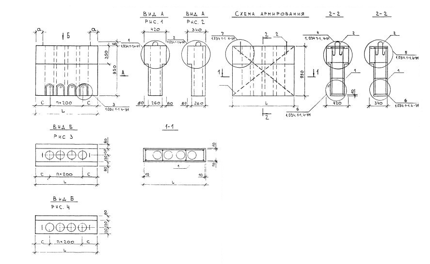
1ВК 8-10

Чертеж изделия:
Характеристики изделия:
ПараметрЗначение
длина840 мм
ширина340 мм
высота950 мм
масса400 кг
нормативный документСерия 1.034.1-1

1ВК 8-10  Вентиляционные блоки крышные из тяжелого бетона (Серия 1.034.1-1).