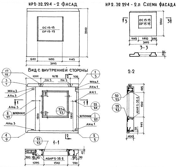
НР2-32.29.4-2л

Чертеж изделия:
Характеристики изделия:
ПараметрЗначение
Длина3195 мм
Ширина400 мм
Высота2900 мм
Масса3590 мм
Нормативный документСерия 1.132-1

НР2-32.29.4-2л   Наружная стеновая панель рядовая по Серии 1.132-1.