2ПР 15
Характеристики изделия:
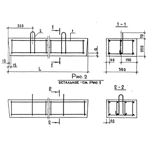
| Параметр | Значение |
|---|---|
| длина | 1550 мм |
| ширина | 380 мм |
| высота | 220 мм |
| вес | 325 кг |
| серия | 1.138-10 |
Цена:
Рассчитать стоимость2ПР 15 Перемычки плитные по серии 1.138-10.
| Параметр | Значение |
|---|---|
| длина | 1550 мм |
| ширина | 380 мм |
| высота | 220 мм |
| вес | 325 кг |
| серия | 1.138-10 |
2ПР 15 Перемычки плитные по серии 1.138-10.
.jpg)