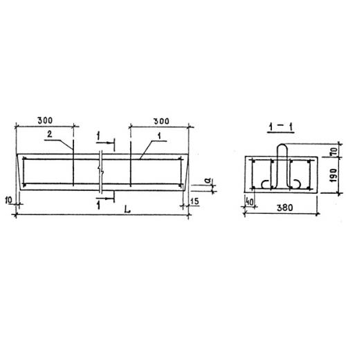
2ПР 23

Чертеж изделия:
Характеристики изделия:
ПараметрЗначение
длина2330 мм
ширина380 мм
высота190 мм
вес421 кг
серия1.138-10

2ПР 23 Перемычки плитные по серии 1.138-10.