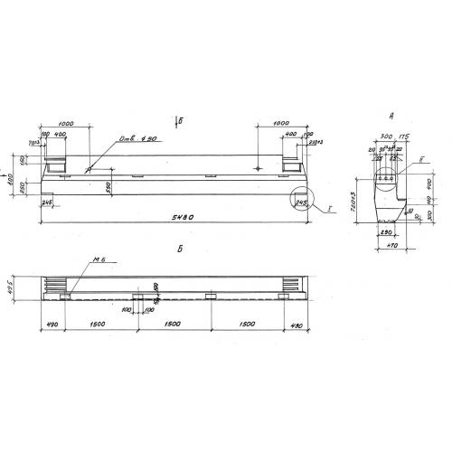
Б 41 ригели торцевые

Чертеж изделия:
Характеристики изделия:
ПараметрЗначение
длина5480 мм
ширина495 мм
высота800 мм
масса3800 кг
нормативный документСерия 1.420-12

Б 41  Ригели с полками для опирания плит  (однополочный ригель) Серия 1.420-12.