К 108

Чертеж изделия:
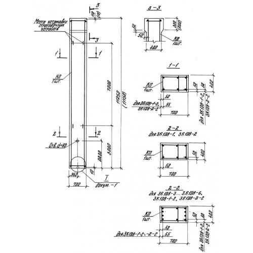
Характеристики изделия:
ПараметрЗначение
длина11150 мм
ширина400 мм
высота700 мм
масса8000 кг
нормативный документСерия 1.423-5

К 108   Железобетонные колонны прямоугольного сечения для одноэтажных производственных зданий Серия 1.423-5.