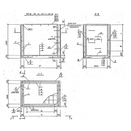
ПР-11

Чертеж изделия:
Характеристики изделия:
ПараметрЗначение
длина1900 мм
ширина1900 мм
высота1650 мм
вес3950 кг
серия3.006 КР-1

ПР-11 Монолитные приямки по серии 3.006 КР-1.