Л 11

Чертеж изделия:
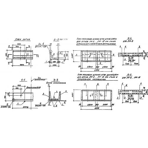
Характеристики изделия:
ПараметрЗначение
длина5970 мм
ширина1480 мм
высота700 мм
масса3600 кг
нормативный документСерия 3.006.1-2/82

Л 11  Лотки теплотрасс Серия 3.006.1-2/82.