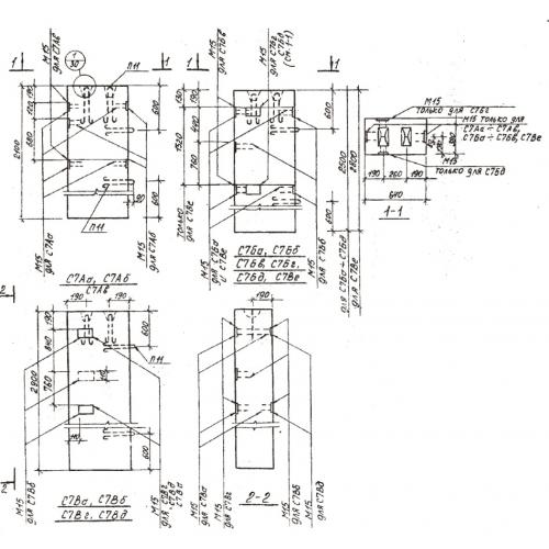
С 7 Б столб забора
Характеристики изделия:
| Параметр | Значение |
|---|---|
| длина | 2500 мм |
| ширина | 380 мм |
| высота | 640 мм |
| масса | 1460 кг |
| нормативный документ | Серия 3.017-1 |
Цена:
Рассчитать стоимостьС 7 Б Столбы оград Серия 3.017-1.
| Параметр | Значение |
|---|---|
| длина | 2500 мм |
| ширина | 380 мм |
| высота | 640 мм |
| масса | 1460 кг |
| нормативный документ | Серия 3.017-1 |
С 7 Б Столбы оград Серия 3.017-1.
