СП

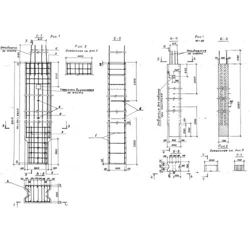
Чертеж изделия:
Характеристики изделия:
ПараметрЗначение
длина9960 мм
ширина1000 мм
высота700 мм
вес14200 кг
серия3.503-49

СП Промежуточный блок опоры - стенки без проемов по серии 3.503-49.