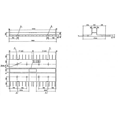
РП 15 блок разделительной полосы

Чертеж изделия:
Характеристики изделия:
ПараметрЗначение
длина2590 мм
ширина2060 мм
высота150 мм
вес1140 кг
серия3.503.1-81

РП 15 Блоки разделительной полосы по серии 3.503.1-81.