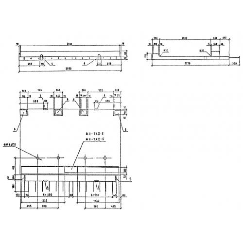
Т 150.15 блок тротуарный
Характеристики изделия:
| Параметр | Значение |
|---|---|
| длина | 2990 мм |
| ширина | 2570 мм |
| высота | 230 мм |
| вес | 1700 кг |
| серия | 3.503.1-81 |
Цена:
Рассчитать стоимостьТ 150.15 Блоки тротуарные по серии 3.503.1-81.
| Параметр | Значение |
|---|---|
| длина | 2990 мм |
| ширина | 2570 мм |
| высота | 230 мм |
| вес | 1700 кг |
| серия | 3.503.1-81 |
Т 150.15 Блоки тротуарные по серии 3.503.1-81.
