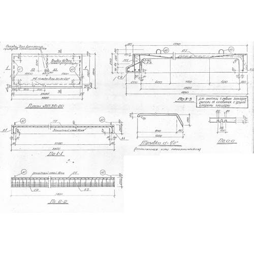
ЛП 36-20 лестничные площадки

Чертеж изделия:
Характеристики изделия:
ПараметрЗначение
длина3800 мм
ширина1840 мм
высота250 мм
масса1720 кг
нормативный документСерия ИИ-65

ЛП 36-20 Межэтажные лестничные площадки по Серии ИИ-65.