СВ 85
Характеристики изделия:
| Параметр | Значение |
|---|---|
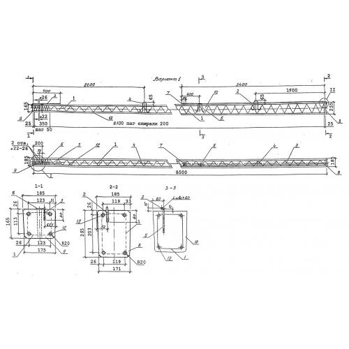
| длина | 8500 мм |
| ширина | 185 мм |
| высота | 255 мм |
| масса | 800 кг |
| нормативный документ | Шифр 20.0139 |
Цена:
Рассчитать стоимостьСВ 85 Стойки вибрированные по Шифру 20.0139.
| Параметр | Значение |
|---|---|
| длина | 8500 мм |
| ширина | 185 мм |
| высота | 255 мм |
| масса | 800 кг |
| нормативный документ | Шифр 20.0139 |
СВ 85 Стойки вибрированные по Шифру 20.0139.
