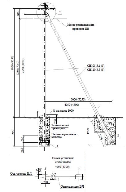
ПОА 32
Характеристики изделия:
| Параметр | Значение |
|---|---|
| длина | 10200 мм |
| ширина | 205 мм |
| высота | 280 мм |
| масса | 1175 кг |
| нормативный документ | Шифр 26.0085 |
Цена:
Рассчитать стоимостьПОА 32 Переходные ответвительные анкерные двухцепные опоры Шифр 26.0085.
| Параметр | Значение |
|---|---|
| длина | 10200 мм |
| ширина | 205 мм |
| высота | 280 мм |
| масса | 1175 кг |
| нормативный документ | Шифр 26.0085 |
ПОА 32 Переходные ответвительные анкерные двухцепные опоры Шифр 26.0085.